- TOP
- プラン
注文住宅の間取り作りの参考になる
お客様から「暮らしやすい!」「こうしてよかった!」と大好評の
- ALL
- 平屋
- 二階建て
-
コンパクトでも、暮らしに必要な「ゆとり」はしっかり確保。14帖のLDKはダイニングとリビングが無理なく分かれ、家族団らんの時間も快適に。寝室にはWICL付きで、収納力も抜群です。シンプルだからこそ、住み心地の良さが際立つ1LDKプランです。
-
家族の気配を感じながら、それぞれの時間も大切に。14.5帖の広々LDKを中心に、ふたつの洋室と充実の収納で暮らしやすさを追求しました。シンプル&スマートな間取りが、今の暮らしにちょうどいい。住むほどに心地よさが増す、そんな住まいです。
-
18帖の広々LDKを中心に、ふたつの洋室とたっぷりの収納を備えたスマートなプラン。WICLや物入で生活用品をすっきり収め、いつも整った空間をキープできます。キッチンと横並びにダイニングテーブルを配置でき、配膳や片付けが最短距離で可能です。コンパクトながら、暮らしに必要な機能と快適さをしっかり詰め込んだ、ちょうどいい住まいです。
-
16帖のLDKを中心に、家族が自然と集まる温かな空間を実現した2LDKプラン。キッチン横にはパントリーを配置し、食品や日用品のストックもすっきり収納可能。寝室はゆったり6帖、洋室4.5帖は個室や趣味部屋としても使いやすいサイズです。洗面脱衣室は使いやすい3帖分の広さを確保。コンパクトながら家事ラク動線と収納力を兼ね備えた、暮らしやすさ満点の住まいです。
-
14帖のLDKを中心に、3つの洋室をバランスよく配置した3LDKプラン。家族の暮らしに合わせて使える5帖の洋室A・Bは、子ども部屋や書斎など多目的に活用できます。主寝室はゆったり6帖で、たっぷりの収納も魅力。キッチンから洗面脱衣室・UBへの動線が短く、家事の効率もアップします。コンパクトながらも個室をしっかり確保し、プライベートと家族時間の両方を大切にできる住まいです。
-
16帖のLDKを中心に、2つの洋室と充実の収納を備えた機能的な3LDKプラン。キッチン横にはパントリーを配置し、食品や日用品のストック管理もスムーズ。家族全員で使える大容量のWICLを完備し、衣類や季節物もすっきり収められます。水回りが集約されており家事動線がコンパクトにまとまった、暮らしやすさと収納力を兼ね備えた住まいです。
-
16帖のLDKを中心に、たくさんの収納スペースと家事ラク動線をしっかり確保した2LDKプラン。キッチン横にはパントリー、玄関にはSCL、各洋室にもOCLを備え、暮らしの中の片付けをサポートします。脱衣室はランドリールームを兼ね、天候に左右されることなく洗濯物を干すことができます。納戸には、季節物や大型用品もすっきり収納可能。コンパクトながら使いやすさと収納力を両立した、快適な住まいです。
-
18帖の広々LDKを中心に、3つの洋室と収納を効率的に配置した回遊動線プラン。玄関からLDK、水回り、各居室へとスムーズに移動でき、家事や生活の動きが自然と快適になります。主寝室は6帖の広さにWICL付きで、大容量収納を確保。洋室A・B(各4.5帖)にもOCLを備え、子ども部屋や書斎にも最適です。家族の団らんとプライベート空間をバランスよく両立した、暮らしやすさ満点の住まいです。
-
16帖のLDKを中心に、全ての居室が直接つながるコンパクトな動線が魅力の3LDKプラン。主寝室は6帖でWICL付き、洋室A・B(各5帖)にもOCLを備え、収納力も充実。キッチン横にはパントリーを配置し、食品や日用品の管理がスムーズに行えます。ホールを設けないことで移動距離を最小限に抑え、家族の気配をいつでも感じられる間取りです。シンプルながら暮らしやすさを追求した、快適な住まいです。
-
16帖のLDKと4つの洋室を設けた、ゆとりある間取り。キッチンから全体を見渡せるレイアウトで、料理をしながら子どもたちの様子も確認できます。主寝室(5.3帖)は落ち着いた位置にあり、LDKと隣接する洋室A・B・C(各5帖)は家族の成長に合わせて子ども部屋やワークスペース、趣味の部屋として柔軟に使えます。土間収納やパントリーなど「しまう場所」を適材適所に配置し、日々の片付けもスムーズ。家族のライフスタイルに寄り添い、長く快適に暮らせる間取りです。
-
18帖のLDKを中心に、家事効率と快適な暮らしを両立した3LDKプラン。脱衣室はランドリールームを兼ね、「洗う・干す・しまう」が一直線に完結するスムーズな家事動線を実現。主寝室は広々7帖で、WICLと直接つながっており、朝の身支度や就寝前の片付けもラクに行えます。洋室A・B(各5帖)にもOCLを備え、子ども部屋や趣味部屋など多目的に利用可能。キッチン横にはパントリーを配置し、食材や日用品のストックもすっきり管理できます。日常の動きがスムーズになる工夫が詰まった、快適な住まいです。
-
18帖の開放的なLDKは、家族が自然と集まる住まいの中心。キッチンからはリビングやダイニング、さらに廊下越しに個室への気配も感じられ、家族のつながりを大切にできます。主寝室(6帖)はWICL直結で、朝の着替えや季節ごとの衣替えもスムーズ。広さが同じな洋室A・Bは、兄弟部屋や趣味スペースなど成長やライフスタイルに合わせた使い方が可能です。玄関から水回り、LDKへの動線が短く、買い物帰りや帰宅後の片付けも効率的。収納はSCL・パントリー・物入などを各所に配置し、いつでも片付いた空間を保てます。
-
18帖のLDKを中心に、家族の団らんと家事効率を両立した2階建てプラン。1階はキッチン横にパントリー、玄関にはSCLを備え、食品や日用品、外出用品をすっきり整理できます。洗面脱衣室と浴室はLDKからもアクセスしやすく、家事の合間に身支度や洗濯もスムーズ。2階は4つの個室をバランスよく配置。主寝室(6帖)はWICL付きで収納力抜群。洋室A・B(各4.5帖)、洋室C(5帖)にはOCLを設け、子ども部屋や書斎など多用途に活用可能です。家族の暮らしに合わせて成長できる、収納充実の住まいです。
-
18帖のLDKを中心に、家族の集う空間と使いやすい生活動線を備えた2階建てプラン。1階はダイニングテーブルをキッチンと横並びに配置でき、配膳や片付けがしやすく家事効率がアップする間取りです。キッチン横に設けられたパントリーは、食料品や日用品のストックに便利。玄関には土間収納を備え、アウトドア用品やベビーカーなどもすっきり収納可能です。2階は4つの居室を配置し、寝室(6.5帖)にはOCL付きで衣類や寝具も整然と収納できます。洋室A・B・C(各5帖)にもOCLを完備し、子ども部屋や在宅ワークスペースなど多彩に活用可能。ホールを中心に各部屋へアクセスでき、家族のプライバシーを保ちながらも程よい距離感でつながれる間取りです。
-
16帖のLDKを中心に、暮らしやすさと収納力を両立した2階建てプラン。1階にはFCLを配置し、洗面脱衣室のすぐ近くで衣類の収納や家族の持ち物を一括管理できます。玄関には広めのSCLを備え、靴はもちろんベビーカーや自転車、アウトドア用品などもすっきり収納可能。2階は8帖の主寝室に4帖分の大容量WICLを備え、衣替えや整理整頓もスムーズ。洋室A・B(各6帖)にもOCLを完備し、子ども部屋や趣味部屋として多目的に活用できます。収納を適材適所に配置することで、家全体をすっきり保ちながら快適に暮らせる住まいです。
-
16帖のLDKを中心に、1階に洋室を1部屋備えた、まるで平屋のような暮らしも可能なプラン。キッチン横にはパントリーを配置し、食材や日用品のストック管理もスムーズ。洗面脱衣室や浴室、トイレも近く、家事動線がコンパクトにまとまっています。1階洋室(4.5帖)はゲストルームや書斎、将来の寝室としても活用でき、ワンフロアで生活が完結します。2階は3つの居室を配置。家族全員で使える大容量のWICLは、衣類や季節物もすっきり整理できます。洋室A・B(各6帖)にはOCLを完備し、子ども部屋や趣味部屋として多目的に利用可能。ホールを中心に各部屋へアクセスでき、家族のプライバシーを保ちながらも自然な交流が生まれる間取りに。将来を見据えた長く快適に暮らせる住まいです。
-
18帖のLDKを中心に、家事効率と収納力を高めた2階建てプラン。1階にはランドリールームを兼ねた脱衣室と洗面室を分けて配置し、「洗う・干す・しまう」がスムーズに行える動線を実現。FCLや広めのSCLも備え、衣類や靴、アウトドア用品などをまとめて収納できます。2階は4つの居室をバランスよく配置。主寝室(8帖)は大容量のWICL直結で、衣替えや整理整頓もラクラク。洋室A・B・C(各5帖)にもOCLを備え、子ども部屋や趣味部屋、在宅ワークスペースとして多彩に活用可能です。ホールには物入もあり、日用品や季節物の収納にも便利。収納の適材適所配置と家事ラク動線で、忙しい毎日を快適にサポートする住まいです。
-
1階だけで生活が完結する「平屋のように暮らせる」プラン。南向きの16帖LDKは明るく開放的で、キッチンからLDKを見渡せる配置。隣接する洋室(5帖)は、昼はワークスペースや客間、夜は寝室としても使える柔軟な空間です。キッチン横のパントリーや玄関近くの収納が日々の片付けをサポートし、洗面脱衣室・浴室・トイレも近くにまとまって家事動線もスムーズ。2階にある主寝室(8帖)は大容量のWICL直結で、衣類や寝具を効率的に整理できます。洋室A・B・C(各5帖)にはOCLを備え、成長に合わせた子ども部屋や趣味部屋として多用途に活用可能。ホール中央の物入は2階で使う日用品や季節物の収納にも便利です。暮らしの変化に寄り添いながら、将来も安心して過ごせる間取りです。
-
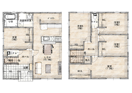
1階に洋室を備えた「平屋のように暮らせる」5LDKプラン。15.8帖のLDKは、キッチン・ダイニング・リビングが程よくゾーニングされ、家族みんなが集まりやすい開放的な空間。1階の洋室(5帖)は、将来的な主寝室やゲストルームとしても活用でき、生活スタイルの変化にも柔軟に対応します。キッチン裏の大型パントリーや玄関SCLが、食品や日用品の収納にも便利。水回りもまとまり、家事動線もスムーズ。2階にある主寝室(7.5帖)はWICL直結で衣類や寝具をたっぷり収納可能。洋室A(6帖)や洋室B・C(各5帖)にもOCLを備え、子ども部屋、趣味部屋など用途は自由自在。ホール中央の物入は2階でも収納力を確保し、家全体をすっきり保てます。家族の人数が多くても快適に暮らせる間取りです。
-
18帖のLDKを中心に、家事のしやすさと収納力を備えた2階建てプラン。1階はキッチンとダイニングテーブルを横並びに配置し、配膳や片付けがスムーズに行える設計。キッチン横にはパントリー、玄関にはSCL、ホールには物入を備え、適材適所に収納を確保しています。2階には4つの居室を配置。主寝室(8帖)は大容量のWICL直結で、衣類や寝具をたっぷり収納可能。洋室A・B・C(各5帖)にもOCLを完備し、子ども部屋や趣味部屋、在宅ワークスペースなど多目的に活用できます。家事効率と片付けやすさを両立した、快適な暮らしを叶える間取りです。
